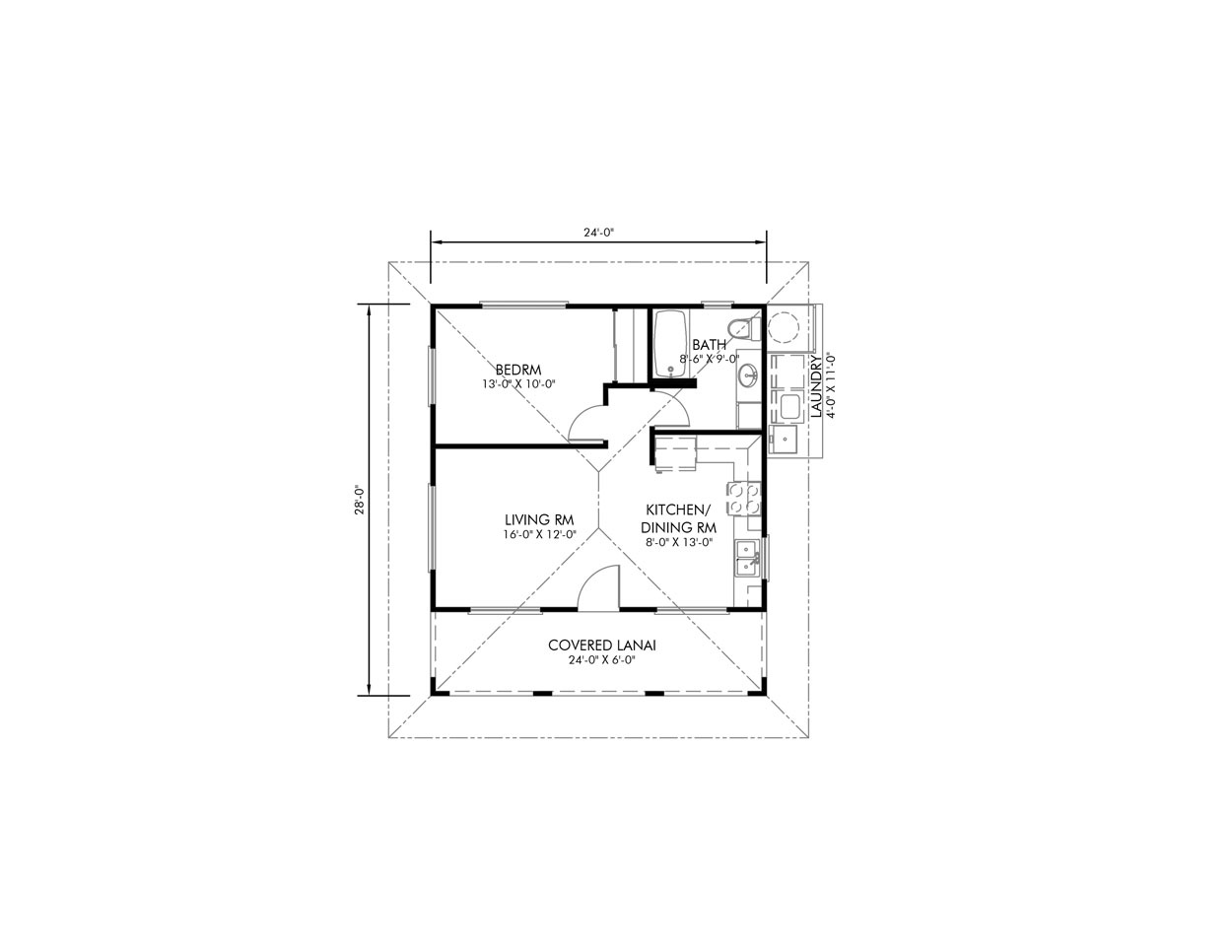
Pilikai
Our Pilikai is a classic beach cottage featuring one bedroom, a single bathroom, a spacious living room and kitchen, plus front lanai and an option for a standalone garage or carport. A simple layout with great flow to enjoy the pleasures of island living.
Design Features:
- Perfect for first-time home builders or for downsizing lifestyles
- Open floor plan kitchen, dining, and living room for flexible living and lots of natural light
- Simple footprint eases construction, saving you time and cost of labor
- Spacious covered lanai for relaxing or entertaining on
- 528 Sq. Ft. Living Area
- 685 Sq. Ft. Total
- 1 Bed
- 1 Bath
- Covered Lanai
- Pre-Approved
- High-Wind Zones
- ADU
- Low-Wind Zones
About HPM Homes
Our proven, affordable home plans can help save time and money as you build your next home.
Contact Us
Disclaimer
All images shown are for illustration purposes only. Not meant to be exact renditions of our homes. Designs may be subject to additional professional design services.
What's Included
- 3 Bed
- 2 Bath
Honoka'a
- 3008 Total Area Sq. Ft.
Get Pricing
Discover all the features of the Pilikai home model. Simply complete the form below to receive detailed pricing information and take the first step towards creating your ideal HPM Home.
Sign up for our newsletter.
Receive the latest in HPM news, products, exclusive deals and more!