ʻAniʻani
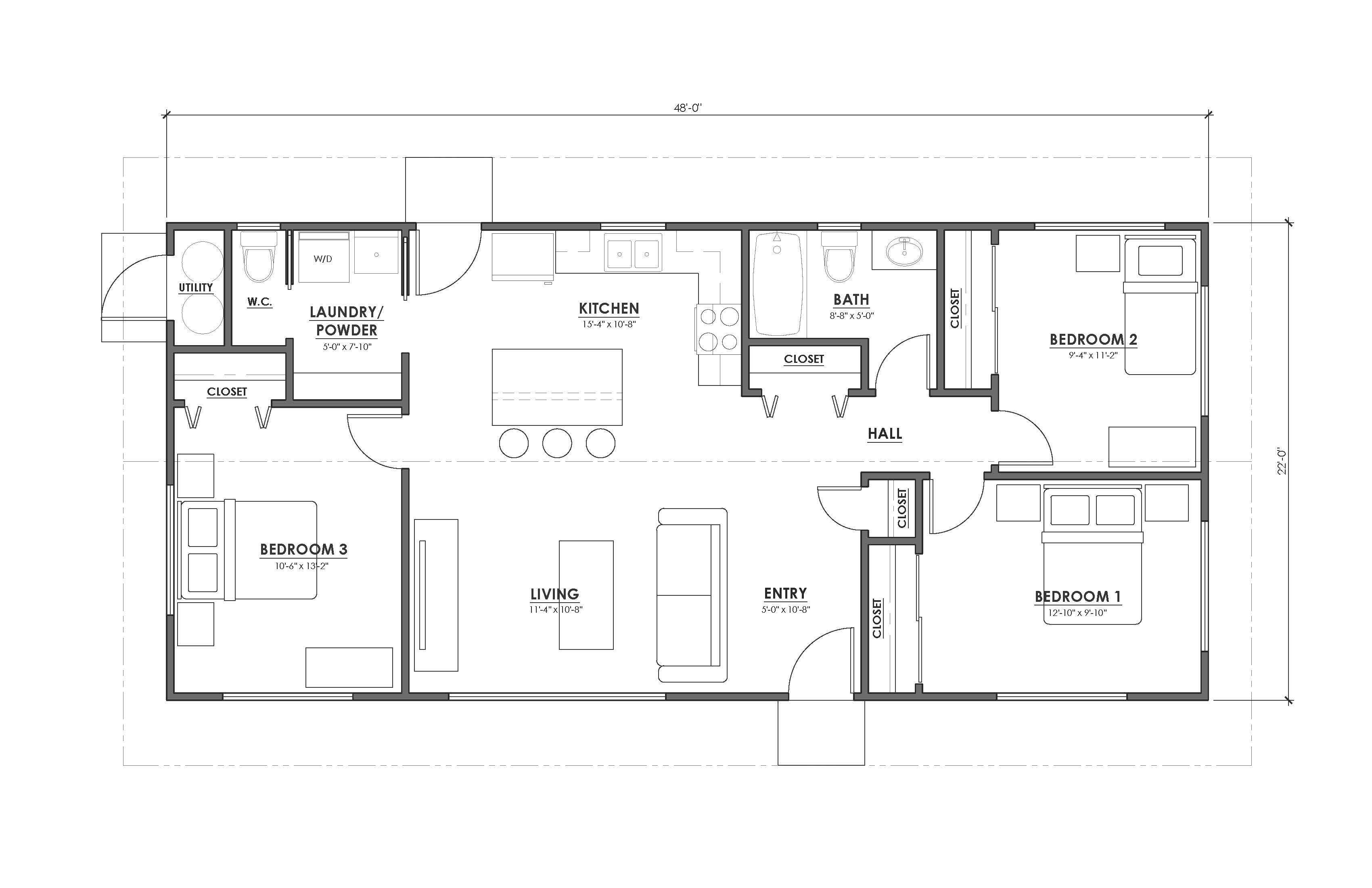
A three-bedroom, one-and-a-half-bath home designed for comfortable and efficient living. Its layout offers a practical balance of shared and private spaces, making it ideal for growing families or those looking to maximize functionality in a modest-sized home. With thoughtful design elements like a dedicated laundry and powder room, and a layout that supports both privacy and connection, the ‘Ani‘ani is a smart choice for everyday living in Hawai‘i.
Design Features:
- The open living area connects seamlessly to the kitchen for easy gathering and flow.
- Three bedrooms are positioned to offer privacy and flexibility for family or guests.
- A full bathroom and separate powder room support convenience for daily routines.
- Dedicated laundry space adds functionality without sacrificing living area.
- Multiple closets throughout the home provide ample storage.
- 1056 Sq. Ft. Living Area
- 1056 Sq. Ft. Total
- 3 Bed
- 1 Bath
- Pre-Approved
- Low-Wind Zones
What's Included
Disclaimer
All images shown are for illustration purposes only. Not meant to be exact renditions of our homes. Designs may be subject to additional professional design services.
About HPM Homes
Our proven, affordable home plans can help save time and money as you build your next home.
Contact Us
Schedule time with one of our designers for a consultation.
Call for More Details:
Hilo: (808) 865-5820
Waimea & Kona: (808) 865-5865
Maui: (808) 249-0659
Oahu: (808) 727-1039
Kauai: (808) 482-6618
- 1 Bed
- 1 Bath
Pilikai
- 685 Total Area Sq. Ft.
- ADU
- Pre-Approved
- High-Wind Zones
- Low-Wind Zones
- 3 Bed
- 2 Bath
Keola
- 1672 Total Area Sq. Ft.
- ADU
- Pre-Approved
- Low-Wind Zones
- 2 Bed
- 1 Bath
'Olu'olu
- 940 Total Area Sq. Ft.
- ADU
- Pre-Approved
- Low-Wind Zones
Sign up for our newsletter.
Receive the latest in HPM news, products, exclusive deals and more!